Stadt Aichtal

Stbl. Entwurf, B-Plan u. GOP Baugebiet "Weckholder"

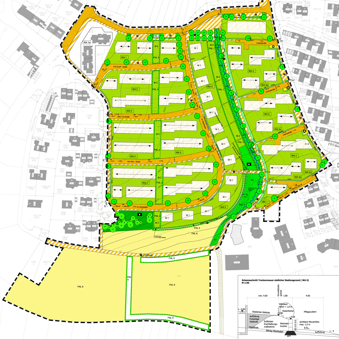
Mit einem 1. Preis des Wettbewerbsverfahrens für das neue Wohngebiet "Weckholder" in Aichtal wurde der Grundstein der städtebaulichen Entwicklung gelegt. Es folgten der städtebauliche Entwurf, der Bebauungsplan, der Grünordnungsplan sowie die öffentlichen Freianlagen. Mittlerweile ist das Wohngebiet nahezu besiedelt.

zurück