Gemeinde Notzingen

Stbl. Entwurf und GOP Hofäcker IV

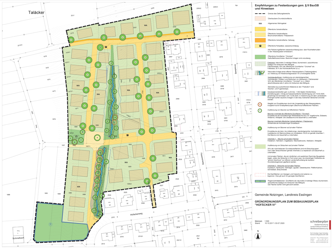
Für das neue Wohngebiet "Hofäcker IV" auf einer 2,6 Hektar großen Fläche im Nordwesten der Gemeinde Notzingen wurde ein städtebaulicher Entwurf und später der Grünordnungs-plan erarbeitet. Die CEF-Maßnahmen für den artenschutzrechtlichen Ausgleich wurden durchgeführt. Aktuell befinden sich die Erschließung sowie die Freianlagen im Bau.

zurück